







126 454 ₴
Функціональна топка для каміна, від польського виробника Hitze HST 68x43.LG, виготовлена з високоякісної котлової сталі, марки P265GH, згідно зі стандартом EN 10028-2, на сучасному обладнанні з ЧПК (2D Laser, 3D Laser). Зварювання виконується методом MAG, завдяки чому гарантована висока якість і естетичність зварних швів.
Камінна топка Hitze HST 68x43.LG завдяки здатності виділяти та тривалий час зберігати теплову енергію, а також можливістю розведення повітропроводів є одним з найефективніших джерел тепла на дровах. Чудовий вибір для клієнтів, які шукають економічне та ефективне опалення для своєї оселі. Можна використовувати, як основне джерело опалення.
Камінна топка Hitze HST 68x43.LG має потужність 9,3 кВт. Дефлектор із керамбетону, а також особлива конструкція задньої частини корпуса топки, яка забезпечує подачу вторинного повітря у верхню частину каміна, дозволяють досягти ККД до 78 %, шляхом додаткового спалювання димових газів.
Як паливо в топці використовуються поліна, деревина, вологістю - до 20%. Розхід палива, складає 2,8 кг/год.
Усередині камін, футерований керамбетоном, який здатний зберігати тепло тривалий час, а також витримувати високу температуру. Попільник та колосники з чавуну.
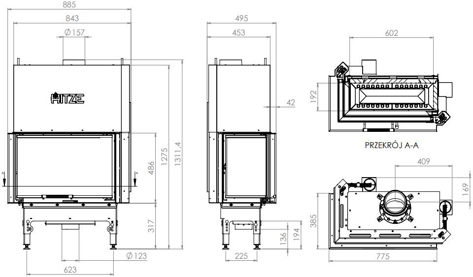
Камінна топка Hitze HST 68x43.LG має велике лівостороннє жаростійке скло, розміром 680х430х295 мм, яке витримує температуру до 800 C та дозволить Вам насолоджуватися горінням вогнища. Скло обдувається потоком повітря - довго залишається чистим, не закопчується, тому його не потрібно часто чистити.
Камінні дверцята виготовлені з посиленого профілю, що підвищує їх жорсткість і довговічність. Зі зручним верхнім (гільйотинним) відкриттям, дозволяють Вам без зусиль відкривати топку, для довантаження палива та обслуговування.
Забір повітря для горіння здійснюється з вулиці, первинне та вторинне горіння керується за допомогою зручного регулятора. Частина повітря використовується для основного горіння, частина для роботи систем чистого скла та вторинного допалювання димових газів - для більш ефективного та повного згоряння палива.
Камінна топка Hitze HST 68x43.LG під'єднується до димаря, за допомогою поворотного на 360 чавунного димохідного патрубка, діаметром 160 мм. Підвід зовнішнього повітря знизу, з допомогою патрубка, діаметром 125 мм.

| Основні | |
|---|---|
| Виробник | Hitze |
| Користувальницькі характеристики | |
| Гарантія | 84 мес. |