



97 811 ₴
Функціональна топка для каміна, від польського виробника Hitze ALBERO AL9G.H-D, виготовлена з високоякісної котлової сталі, марки P265GH, згідно зі стандартом EN 10028-2, на сучасному обладнанні з ЧПК (2D Laser, 3D Laser). Зварювання виконується методом MAG, завдяки чому гарантована висока якість і естетичність зварних швів.
Камінна топка Hitze ALBERO AL9G.H-D завдяки здатності виділяти та тривалий час зберігати теплову енергію, а також можливістю розведення повітропроводів є одним з найефективніших джерел тепла на дровах. Чудовий вибір для клієнтів, які шукають економічне та ефективне опалення для своєї оселі. Можна використовувати, як основне джерело опалення.
Камінна топка Hitze ALBERO AL9G.H-D має потужність 9 кВт. Конвективні отвори та дефлектор із керамбетону, а також особлива конструкція задньої частини корпуса топки, яка забезпечує подачу вторинного повітря у верхню частину каміна, дозволяють досягти ККД до 78 %, шляхом додаткового спалювання димових газів.
Як паливо в топці використовується деревина, вологістю - до 20%.
Усередині камін, футерований керамбетоном, який здатний зберігати тепло тривалий час, а також витримувати високу температуру. Попільник та колосники з чавуну.
Камінна топка Hitze ALBERO AL9G.H-D має велике жаростійке скло, розміром 390x545 мм, яке витримує температуру до 800 C та дозволить Вам насолоджуватися горінням вогнища. Скло обдувається потоком повітря - довго залишається чистим, не закопчується, тому його не потрібно часто чистити.
Особлива конструкція камінної топки зі зрізаними кутами, робить її чудовим вибором для встановлення у куті кімнати зі значним збереженням простору у кімнаті. На задній стінці, також є додаткові радіатори (ребра), що збільшують площу поверхні нагріву каміна.
Камінні дверцята виготовлені з посиленого профілю, що підвищує їх жорсткість і довговічність. Зі зручним верхнім (гільйотинним) відкриттям, дозволяють Вам без зусиль відкривати топку, для довантаження палива та обслуговування.
Забір повітря для горіння здійснюється з вулиці, первинне та вторинне горіння керується за допомогою зручного регулятора. Частина повітря використовується для основного горіння, частина для роботи систем чистого скла та вторинного допалювання димових газів - для більш ефективного та повного згоряння палива.
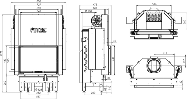
Камінна топка Hitze ALBERO AL9G.H-D під'єднується до димаря - зверху, за допомогою патрубка, діаметром 180 мм. Підвід зовнішнього повітря знизу, з допомогою патрубка, діаметром 125 мм.

| Основні | |
|---|---|
| Виробник | Hitze |
| Користувальницькі характеристики | |
| Гарантія | 84 мес. |